Lugao vie yli 100 tyhjiökatkaisijaa vuodessa osoittaen poikkeuksellisen tuotteen laadun. VS1 Kiinteä tyyppiä 24KV/36KV Sisäympäristöväyläkatkainta käytetään kolmivaiheisessa AC 50Hz: n sisätehon jakelujärjestelmissä, keskeyttäen nopeasti oikosulkuvirrat ja suojaavat pääasiassa sähkölaitteita. VS1 on kompakti ja helppo asentaa, mikä vaatii vain säännöllisen kontaktin kulumisen tarkastusta.
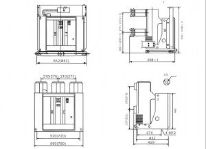
VS1-12-sarjan kiinteä tyyppi 24KV/36KV Sisäympäristövälittäjä on kolmivaiheinen vaihtovirta, 50 Hz, 12 kV: n nimellinen sisäkytkin. Ne on suunniteltu hallintaan ja suojaamiseen teollisuus- ja kaivosyrityksissä, voimalaitoksissa, sähköasemissa ja sähkölaitoksissa, ja ne sopivat usein toimintaan. Käyttömekanismi on integroitu katkaisijan runkoon, mikä mahdollistaa joko kiinteän asennuksen tai vaunutyyppisen yksikön, jolla on oma käyttövoima. Pääpiiri käyttää kiinteästi suljettuja napoja, mikä johtaa kompaktiin, erittäin luotettaviin ja huoltovapaisiin katkaisijaan. Ne ovat yhteensopivia keskustaan kiinnitettyjen vaunutyyppisten kytkentälaitteiden kanssa, kuten KYN28A-12 (GZS) -sarja. Kiinteä versiota voidaan käyttää myös XGN -sarjan kiinteällä kytkentälaitteella.
• Ympäristön lämpötila: enintään 40 ° C, enintään -10 ° C (varastointi ja kuljetus -30 ° C: ssa);
• Korkeus: korkeintaan 1000 m (jos korkeutta kasvatetaan, nimelliseristysaste nousee vastaavasti);
• Suhteellinen kosteus: Päivittäinen keskiarvo, joka on korkeampi kuin 95%, tyydyttyneen höyrynpaineiden päivittäinen keskiarvo, joka ei ole korkeampi kuin 2,2 kPa, kuukausittainen keskiarvo, joka on korkeampi kuin 1,8 kPa;
• Seisminen voimakkuus: ei korkeampi kuin suuruus 8;
• Sijainti, joka ei ole tulta, räjähdys, vaikea saastuminen, kemiallinen korroosio tai vaikea tärinä.


Korkeajännitteinen 40KV sisätyhjiökatkaisija
40.5KV automaattinen sulkeutuva tyhjiökatkaisin 40.5KV
630A Indoor HV -tyhjiön katkaisija
VS1 12KV/17,5KV 3POLE KÄSIKIRJA TYYPPI Korkeajännitteen tyhjiökatkaisija
12KV 24KV 36KV HV ja MV -sivulle asennettu älykäs tyhjiökatkaisija kytkentälaitteille
12 kV sisätilojen älypuhelimen tyhjiökatkaisija